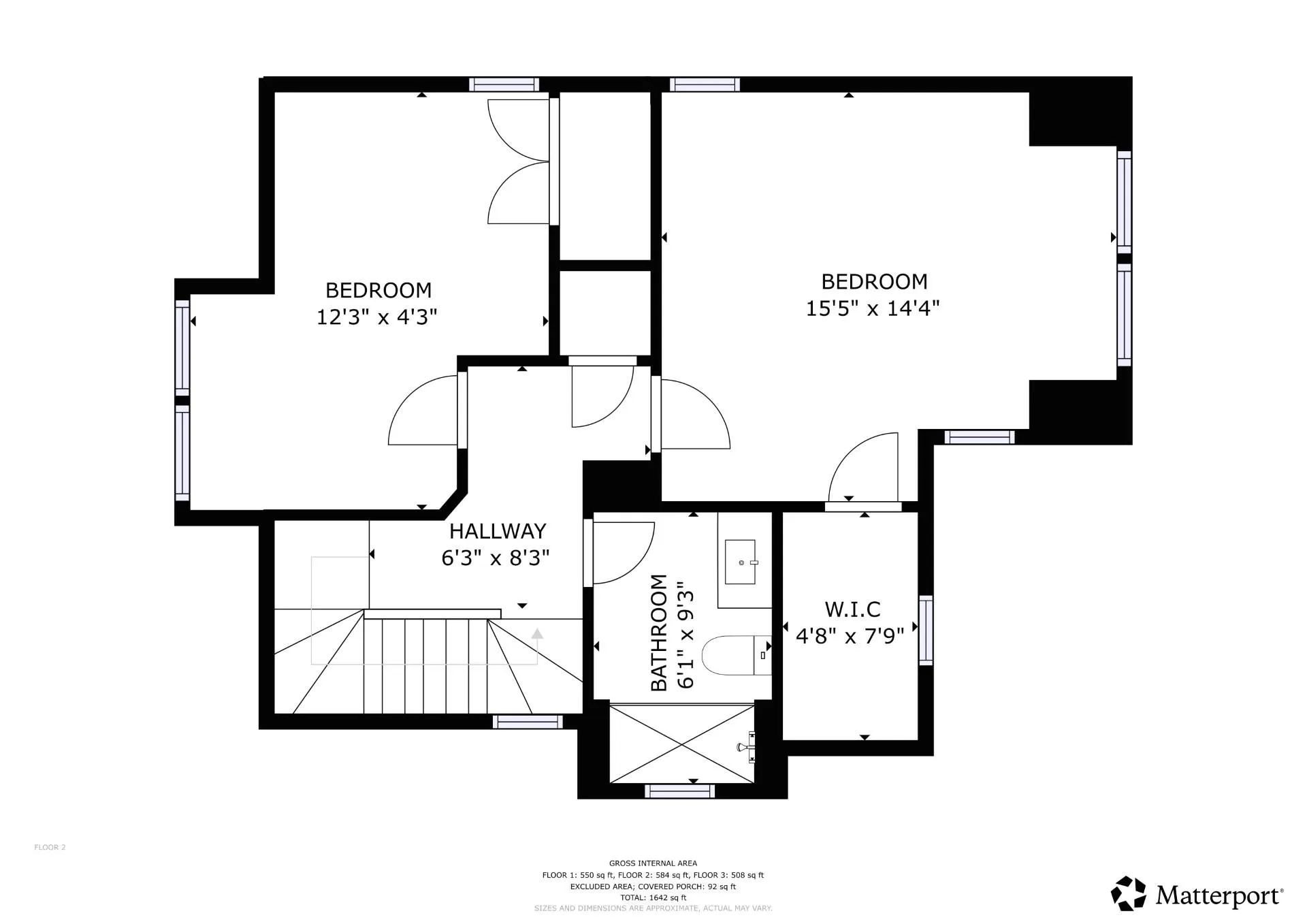
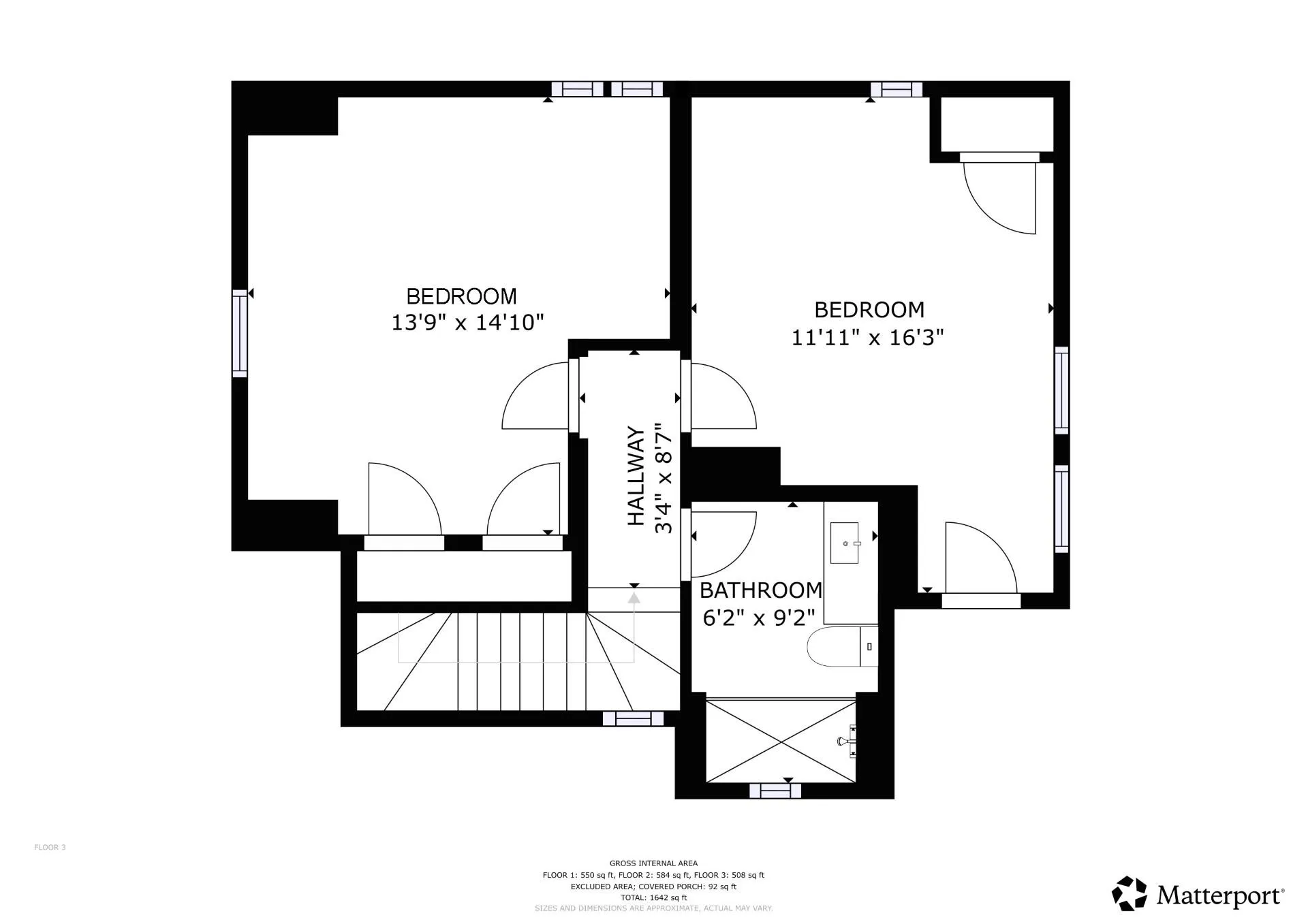
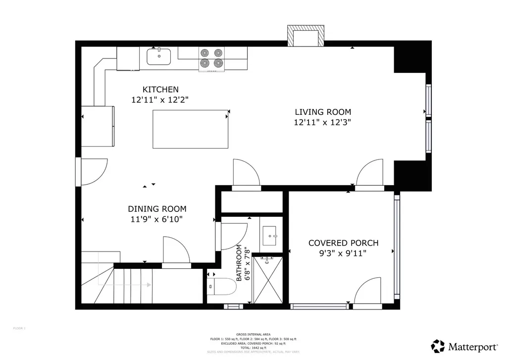
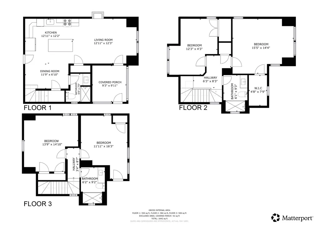
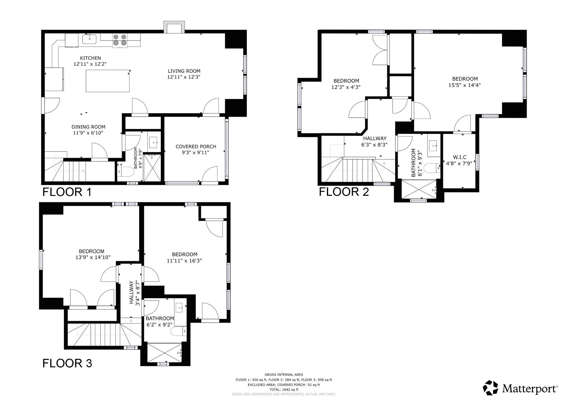
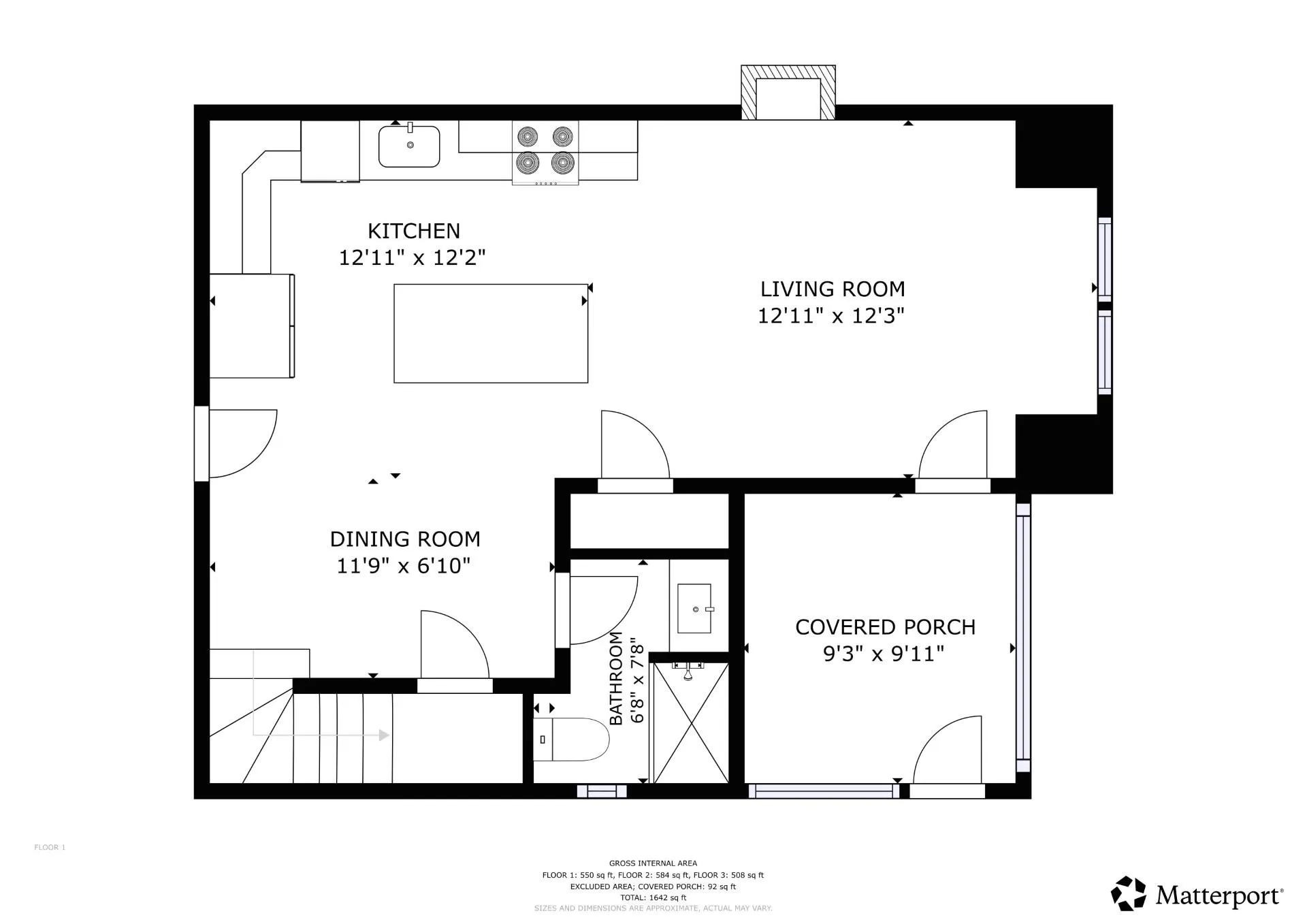
Welcome to Your Dream Lakefront Retreat! This stunning 4-bedroom, 3-bathroom home is nestled in the heart of Paugus Bay in Laconia, NH. Built in 2022, this modern gem sits within an exclusive 12-home boutique waterfront association with low HOA fees-a rare find with short-term rentals allowed, making it perfect for personal enjoyment and investment income. Step inside to a bright, open-concept layout featuring quartz countertops, white oak floors, and expansive windows that capture incredible views of Lake Winnipesaukee. The living and dining areas flow effortlessly, perfect for entertaining or relaxing after a day on the water. The second floor features a spacious primary suite with stunning sunset views and a generous walk-in closet. You'll also find a second bedroom, a convenient ¾ bath, and a dedicated laundry area. The top floor offers two additional bedrooms and a third ¾ bath-ideal for guests, kids, or a home office setup. Outside, enjoy direct lake access with your own deeded dock-perfect for boating, fishing, kayaking, or sunset cruises. Whether you're seeking a four-season getaway or a turn-key income property, this home offers unmatched versatility and views that will take your breath away. All this, just minutes from Weirs Beach, Gunstock Mountain, Bank of NH Pavilion, top-rated restaurants, shopping, and year-round attractions. Experience lakefront living at its finest - don't miss this unique opportunity on Lake Winnipesaukee!

Listing Tools

Property Details of 109 Weirs Boulevard, Unit 12

Property Details

Interior Features

Exterior Features

Utilities and Appliances

Map Location

Broker Reciprocity 

Copyright 2025 PrimeMLS, Inc. All rights reserved. This information is deemed reliable, but not guaranteed. The data relating to real estate displayed on this display comes in part from the IDX Program of PrimeMLS. The information being provided is for consumers’ personal, non-commercial use and may not be used for any purpose other than to identify prospective properties consumers may be interested in purchasing. Data last updated November 13, 2025 11:53 AM EST

 

Hi there! How can we help you?

Contact us using the form below or give us a call.

Send Us A Message:

I agree to receive marketing and customer service calls and text messages from Old Mill Properties. To opt out, you can reply 'stop' at any time or click the unsubscribe link in the emails. Consent is not a condition of purchase. Msg/data rates may apply. Msg frequency varies. Privacy Policy.

Do not fill in this field:

This site is protected by reCAPTCHA and the Google Privacy Policy and Terms of Service apply.

Hi there! How can we help you?

Contact us using the form below or give us a call.

Send Us A Message:

Do not fill in this field:

This site is protected by reCAPTCHA and the Google Privacy Policy and Terms of Service apply.

Hi there! How can we help you?

Contact us using the form below or give us a call.

Send Us A Message:

Do not fill in this field:

This site is protected by reCAPTCHA and the Google Privacy Policy and Terms of Service apply.

Do not fill in this field:

This site is protected by reCAPTCHA and the Google Privacy Policy and Terms of Service apply.

Do not fill in this field:

This site is protected by reCAPTCHA and the Google Privacy Policy and Terms of Service apply.

Do not fill in this field:

This site is protected by reCAPTCHA and the Google Privacy Policy and Terms of Service apply.

$

Do not fill in this field:

This site is protected by reCAPTCHA and the Google Privacy Policy and Terms of Service apply.